PROYECTO

El edificio AD 1360 se conforma de 24 unidades de vivienda, con orientación este-oeste y patio al norte, garantizando iluminación natural, ventilación cruzada, máximo asoleamiento y vistas despejadas al entorno.

UNIDADES

PROGRESO DE OBRA

    • Avance de obra100%

Todas las unidades cuentan con terraza o patio de uso exclusivo. Espacios de living y dormitorios con previsión eléctrica y sanitaria para aire acondicionado, pavimento vinílico y grandes aberturas de aluminio, protegidas con cortinas de enrollar.

Cocinas integradas con muebles bajo mesada y aéreo. Mesadas de granito y pileta en acero inoxidable. Mueble para lavarropas y calefón independiente. Amplios baños accesibles con terminaciones de primera calidad.

ASÍ SON LAS UNIDADES

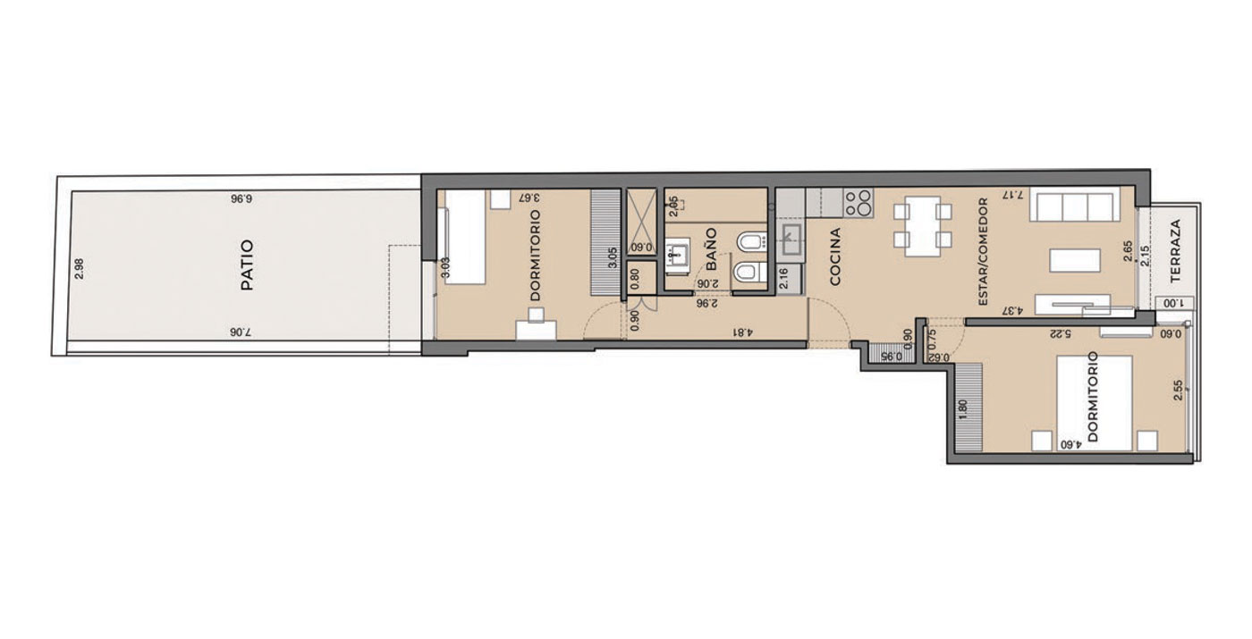
PLANO UNIDAD 2 DORMITORIOS

Unidad 101

PLANO UNIDAD 1 DORMITORIO

Unidades 102 / 202 / 302 / 402 / 502 / 602

PLANO UNIDAD 1 DORMITORIO

Unidad 103

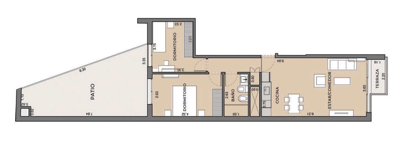
PLANO UNIDAD 2 DORMITORIOS

Unidades 201 / 301 / 401 / 501 / 601 / 701 / 801 / 901

PLANO UNIDAD 1 DORMITORIO

Unidades 203 / 303 / 403 / 503 / 603

PLANO UNIDAD 2 DORMITORIOS

Unidad 702

PLANO UNIDAD 2 DORMITORIOS

Unidades 802 / 902

QUIERE INFORMACION ADICIONAL?

Estamos a sus órdenes por cualquier consulta que tenga, y lo invitamos a conocer el edificio y las 2 ultimas unidades disponibles.

    TELÉFONO / WHATSAPP

    (598) 92 688 930